📊 Load Monitoring - 1
Home
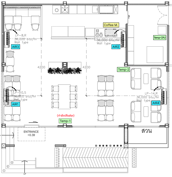
🏬 Store Layout
📊 Load Monitoring
📊 All Monitoring
About
1 Jan 0001 00:00:00
AMZ สาขา สน.ถนนบรมราชชนนี
Device
Process value
An unhandled error has occurred.
Reload
🗙